logo

BRIVE LA GAILLARDE

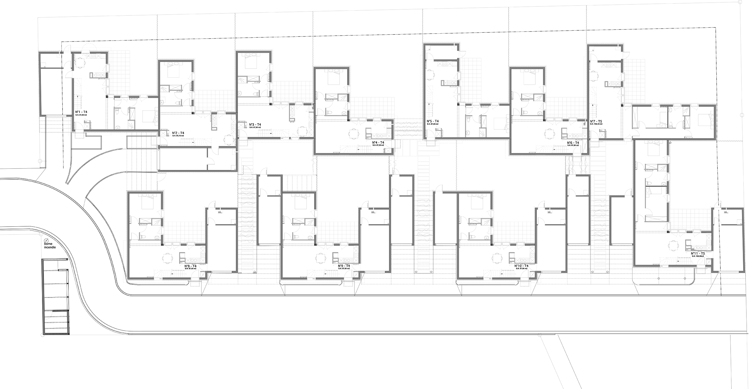
11 maisons , avenue du 18 juin à Brive-la-Gaillarde (Corrèze)

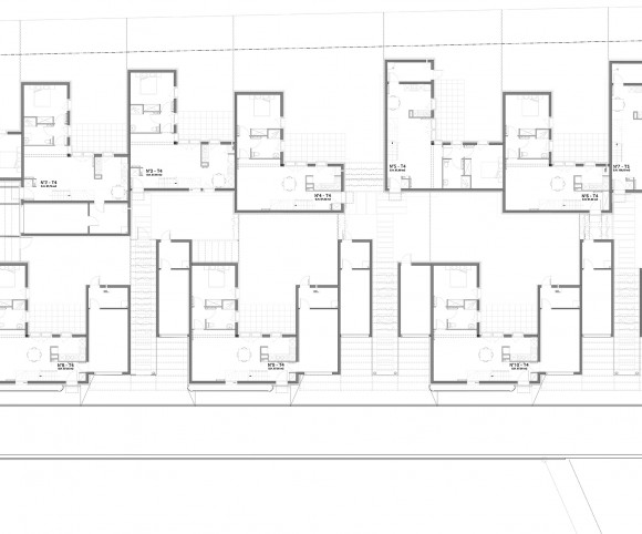
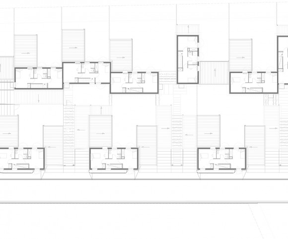
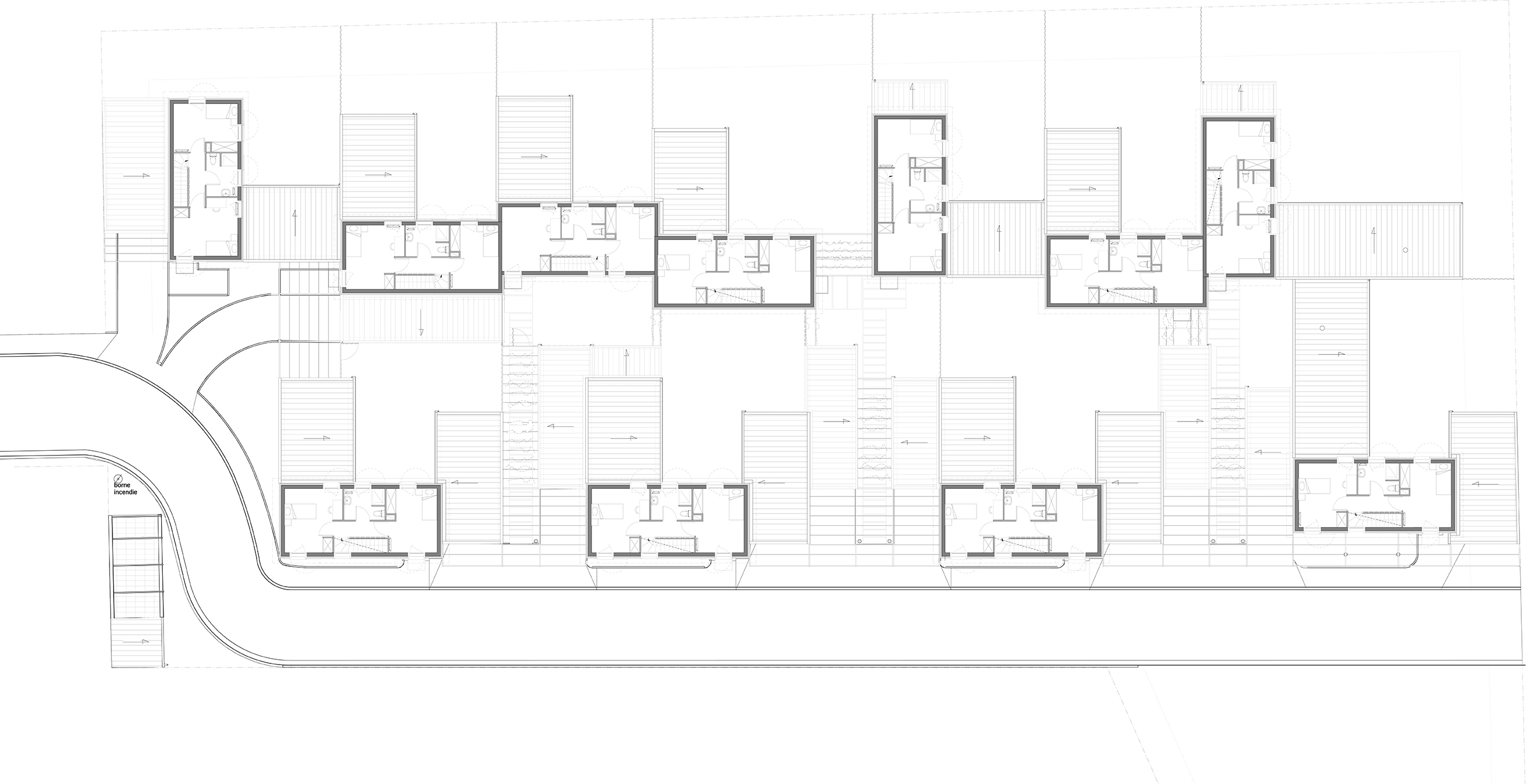
Profitant d’une parcelle en drapeau, là ou existait un local industriel, le choix d’implantation a été de proposer une « villa » de constructions individuelles denses. Ces maisons sont organisées sur deux plans : un premier plan sur la voie intérieure. Le deuxième, à l’arrière, accessible uniquement par des venelles piétonnes transversales.
Des pergolas supports de plantes grimpantes assurent la continuité des façades le long de la voie. Et marquent l’accès aux parcelles en arrière plan.

La typologie s’apparente aux maisons en L, comprenant un corps principal sur deux niveaux et se retournant sur un seul niveau. Elle regroupe neufs quatre pièces et deux cinq pièces.

Le plan en L assure une intériorité au jardin. Les pièces communes étant largement ouvertes sur ce dehors. Toutes les maisons bénéficient, d’une salle de bain éclairée naturellement, d’un jardin privé et d’une terrasse.

Le choix constructif est le suivant : maçonnerie au rez de chaussée et ossature bois en étage, l’isolation étant extérieure, la protection de celle ci étant en enduit ou bardage bois.

Localisation : Brive-la-Gaillarde
Maître d’ouvrage : Brive Habitat
Intervenants : Bet structure : Betec, Bet fluides : Betec, Synergie
Responsable de projet : Mira Rizkhallah
Jardin : Brigitte Lagier-Gribé
Coût des travaux : 1 400 000 €
S.P. : 1375 m2
Livraison : 2011
Label : BBC

date : janvier 03, 2017