logo

VITRY SUR SEINE

Fabriquer une cour – 30 logements sociaux à Vitry-sur-Seine (94)

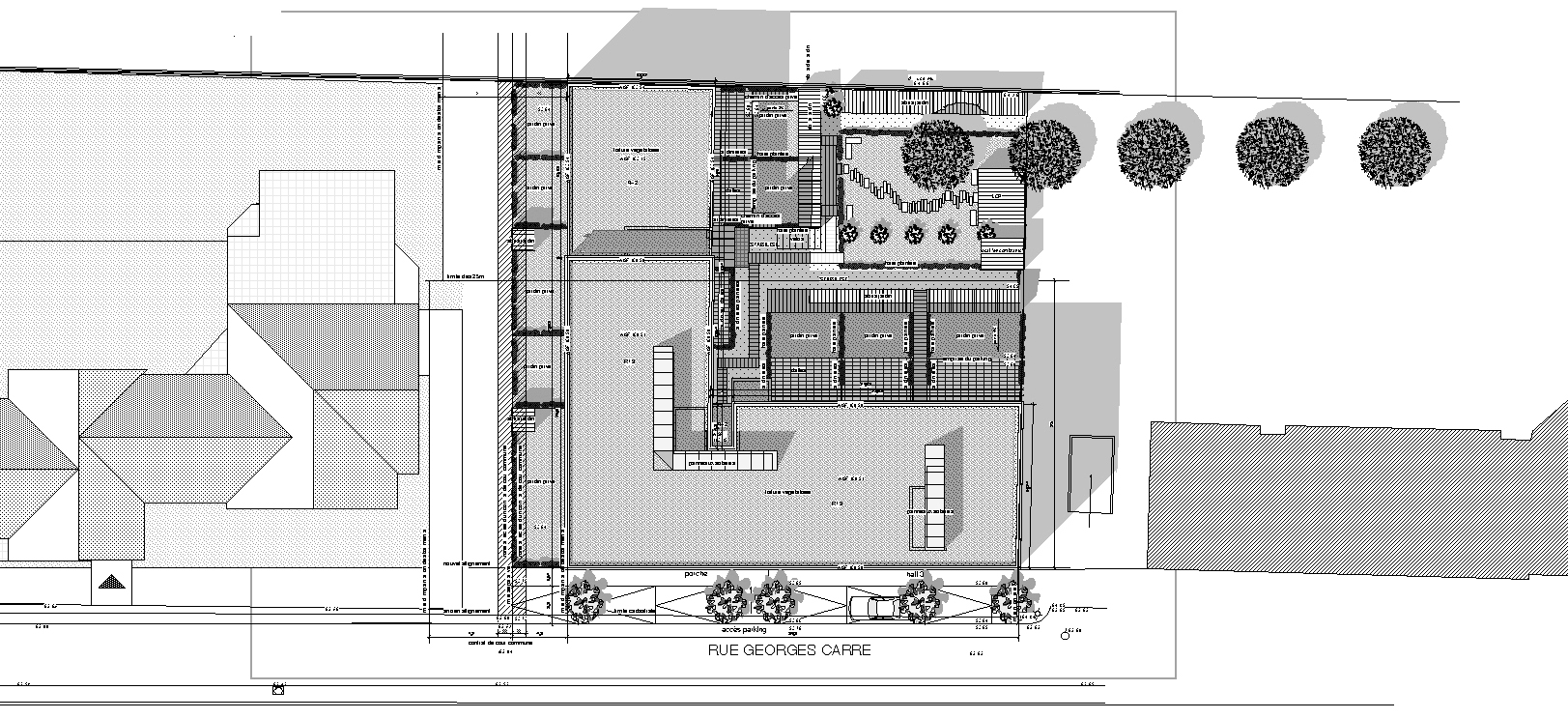
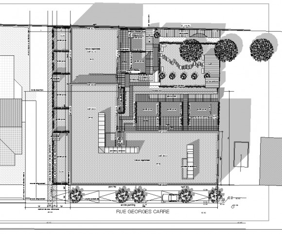
Le dessin du plan-masse en «L» permet de proposer vingt-cinq logements traversants sur trente; les cinq autres étant mono-orientés sud-est et sud-ouest. La façade sur la rue est orientée sud-est, épaisse elle permet au rez-de-chaussée d’être protégé par un léger recul. Cet espace végétalisé est marqué par un mur bahut surmonté d’une grille. Aux étages, des loggias filantes permettent les protections solaires et le recul aux vues des passants et des voisins.
Les réponses aux questionnements du développement durable sont aussi données par les matériaux : que ce soit pour les revêtements (notamment les sols en linoléum), ou encore pour les menuiseries extérieures (bois, ou bois-alu). A l’arrière on trouve des jardins privés et un jardin partagé.

Localisation : Vitry sur Seine
Maître d’ouvrage : Semise
Intervenants : EPDC
Responsable de projet : Gérald Gribé
Jardin : Brigitte Lagier-Gribé
Coût des travaux : 4.100.000 €
Livraison : 2010
Label : THPE – qualitel HQE

date : janvier 20, 2017