logo

GENTILLY

Immeuble de bureaux et un hall d’accueil public à Gentilly (94)

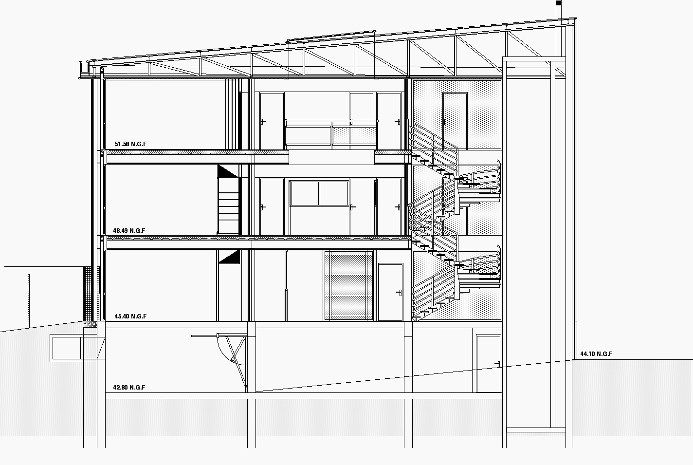
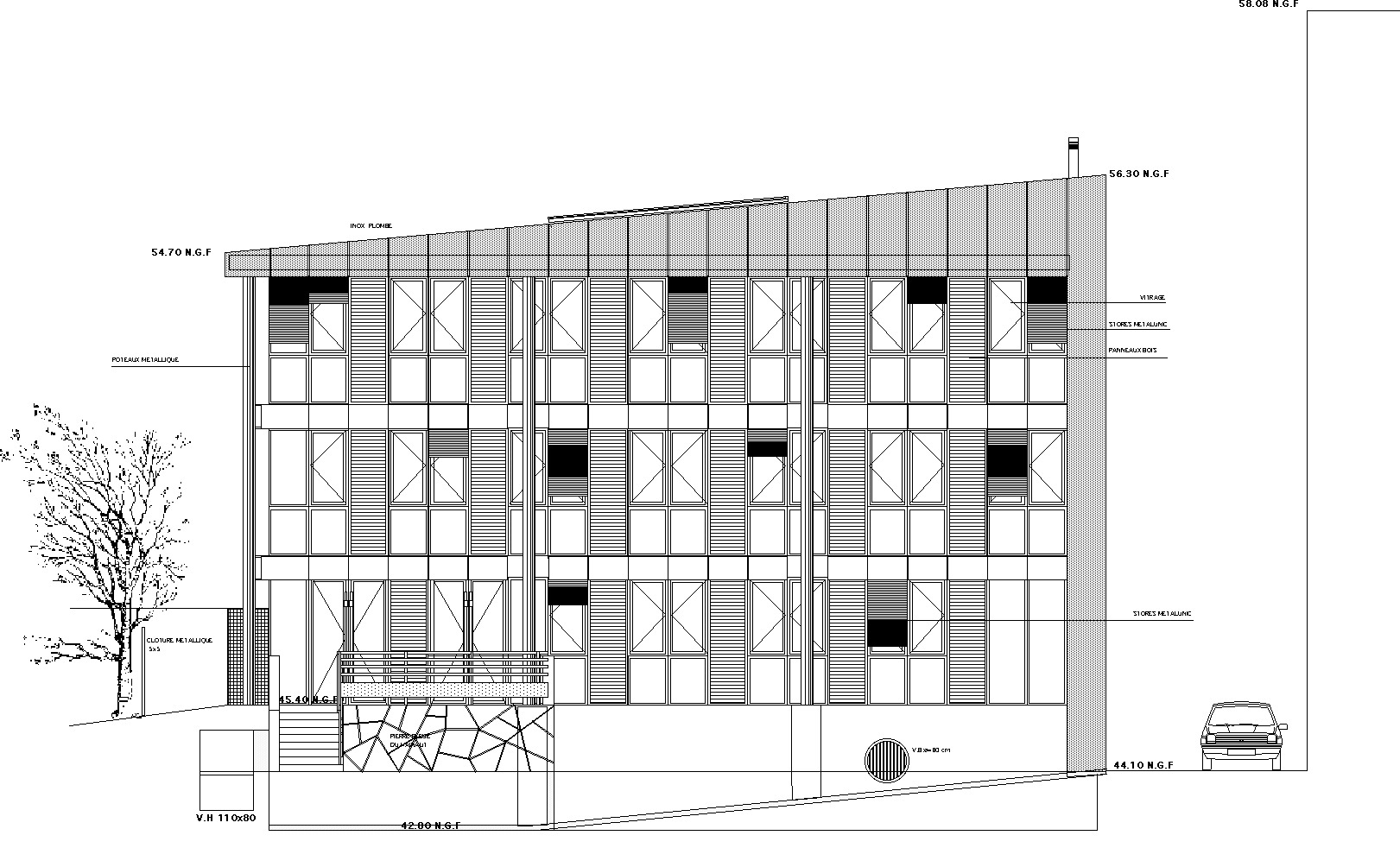
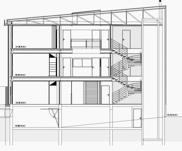
De plan carré, éclairé sur trois côtés, cet édifice singulier accueille les locaux de l’Action Sanitaire et Sociale du Val-de- Marne, un programme composé d’un hall public et de bureaux. Construit en charpente métallique à poteaux extérieurs, habillé de tôles d’acier rouge qui renvoient aux briques des immeubles voisins, ce volume compact tire son efficacité plastique de sa simplicité et d’un ensemble de détails discrets. L’absence de poteaux d’angle, l’intégration des coulisses des stores, et le renvoi des eaux pluviales capoté de zinc, qui ourle le mur arrière et retourne à la verticale l’habillage du toit.

Ville :  Gentilly (94)
Intervenants : BET TCE : Berim
Maître d’ouvrage : 
département du Val-de-Marne
Intervenants :
BERIM
Responsable de projet :
Gérald Gribé
Jardin :
Brigitte Lagier-Gribé
Coût des travaux : 
1 148 000 €
Label : 

date : septembre 20, 2014